Používame cookies

Súbory cookie a ďalšie technológie sledovania používame na zlepšenie vášho zážitku z prehliadania našich webových stránok, na to, aby sme vám zobrazovali prispôsobený obsah a cielené reklamy, na analýzu návštevnosti našich webových stránok a na pochopenie toho, odkiaľ naši návštevníci prichádzajú. Viac info

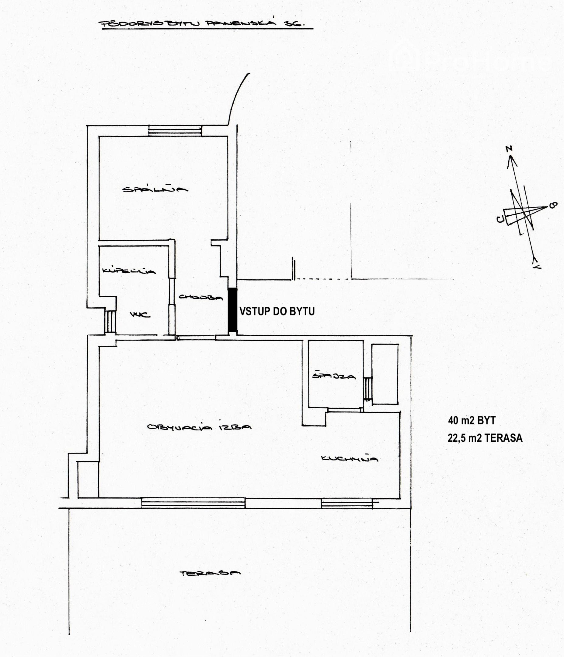
Strešný staromestský byt s terasou, na Panenskej ulici

Ulica: Panenská
Obec: Bratislava-Staré Mesto
Úžitková plocha: 63 m2
Druh: Byty
Typ bytu: 2-izbový byt
Iné:
311 000 €
Vrátane provízie, notárskych a katastrálnych poplatkov

Popis nehnuteľnosti

ProHome Real Estate ponúka na predaj strešný staromestský byt s terasou, na Panenskej ulici.


2 izbový byt sa nachádza na najvyššom, šiestom poschodí bytového domu na rohu Panenskej ulice a Suchého mýta, ktorý bol postavený v tridsiatych rokoch minulého storočia. Dom je v dobrej kondícii, je zateplený a samozrejme sa v ňom nachádza výťah.

Byt nás ohúril svojim štýlom. Jeho dizajnové prvky nás veľmi citlivo a umne vraciajú do doby, z ktorej byt pochádza, napriek tomu že v roku 2015 prešiel hĺbkovou rekonštrukciou. Skvelý dojem ešte umocňuje terasa s úchvatnými výhľadmi na Suché mýto a spálňa s výhľadom na hradný vrch.

 

Dispozične pozostáva z vstupnej chodby, ktorá delí byt na nočnú časť, v podobe spálne orientovanej do dvorčeka, a na časť spoločenskú, ktorú tvorí obývačka prepojená s kuchyňou a veľkou špajzou, a dominantnou terasou. Z chodby sa vchádza aj do štýlovej kúpeľňe s WC. Je klimatizovaný jednotkami značky DAIKIN.

 

Byt je svojou lokalitou predurčený pre kvalitné staromestské bývanie, prípadne pre krátkodobý alebo dlhodobý prenájom. K jeho vlastníctvu samozrejme prináleží aj možnosť rezidenčnej parkovacej karty Starého mesta. Parkovací dom na Panenskej ulici ponúka tiež možnosť prenájmu garážového miesta.

 

Interiér: 40m2
Terasa: 22,5m2

Cena:  311 000 eur

  • zahŕňa služby realitnej kancelárie, právny servis, štandardné notárske a katastrálne poplatky

 

Mesačné náklady na správcu sú pri 2 osobách len 120€, čo zahŕňa aj kúrenie, vodu, odvoz smetí a fond opráv. Elektrina, internet a TV sú pochopiteľne extra.

 

Zaujala Vás táto ponuka? 


Ak si chcete nehnuteľnosť pozrieť bližšie a získať tak potrebnú emóciu, veľmi radi Vás prevedieme týmto priestorom v podobe osobnej prezentácie a odpovieme na všetky Vaše otázky.

 

© Práva na texty, fotografie a grafiky sú vyhradené

Vlastnosti

Status:
aktívne
Vlastníctvo:
spoluvlastníctvo
Úžitková plocha:
40 m2
Zastavaná plocha:
40 m2
Podlahová plocha:
40 m2
Skladová plocha:
1 m2
Stav:
úplne prerobený
Počet izieb:
2
Typ výbavy:
kompletne vybavený
Terasa:
áno
Výťah:
áno
Rok výstavby:
1935
Rok poslednej rekonštrukcie:
2015
Počet poschodí od prízemia vyššie:
6
Pozícia:
posledné poschodie
Celková plocha:
63 m2
Terasa plocha:
22.5 m2
Počet terás:
1
Vykurovanie - centrálne:
áno
Internet:
áno
Káblová TV:
áno

Pozrieť na mape

Maklér

Bc. Lukáš Novotný LL.M

Bc. Lukáš Novotný LL.M

managing partner

  • Slovensky
  • Česky
  • English
  • rusr

V realitách nevídaná kombinácia ITčkára, manažéra, investora a právnika

Počas mojej dvadsaťročnej kariéry v IT segmente som mal k realitám veľmi blízko, ako individuálny aj kolektívny investor. Priľnutie k realitám bol pre mňa teda len prirodzený ďalší krok.

Či hľadáte domov, máte na predaj priemyselný areál, alebo developerský projekt, pomôžem vám s riešením.

Radi Vám poradíme

Podobné nehnuteľnosti